一膳牛·蹺腳牛肉餐廳
品牌策劃設計全案
客戶名稱:一膳牛
服務內容:餐飲品牌策劃|餐飲品牌設計|餐飲logo設計|餐飲vi設計|餐飲空間設計
一膳牛團隊一直致力于餐飲行業,在機緣巧合中發現川菜中特色菜品“蹺腳牛肉”,是四川樂山的傳統名菜,具有百年文化歷史,但除四川外鮮為人知。2020年5月,一膳牛第一家餐廳正式開業,但因團隊缺乏品牌操作能力,與同品類其他品牌相比處于弱勢,因此找到達岸,借助達岸成熟的品牌操作能力與設計落地能力共同為該項目賦能。
達岸基于蹺腳牛肉先天非物質文化遺產基因優勢,幫助客戶搶占“樂山非遺上榜川菜”的定位認知,圍繞“正宗”這一品牌承諾,建立消費者對品牌信任可感知的說服體系;尋找具有價值感知的品牌符號,創意品牌資產,并為餐飲店終端落地提供產品規劃與營銷策劃及設計服務。
一膳?!ぼE腳牛肉餐廳餐飲品牌策劃|餐飲品牌設計|餐飲logo設計|vi設計|餐飲空間設計
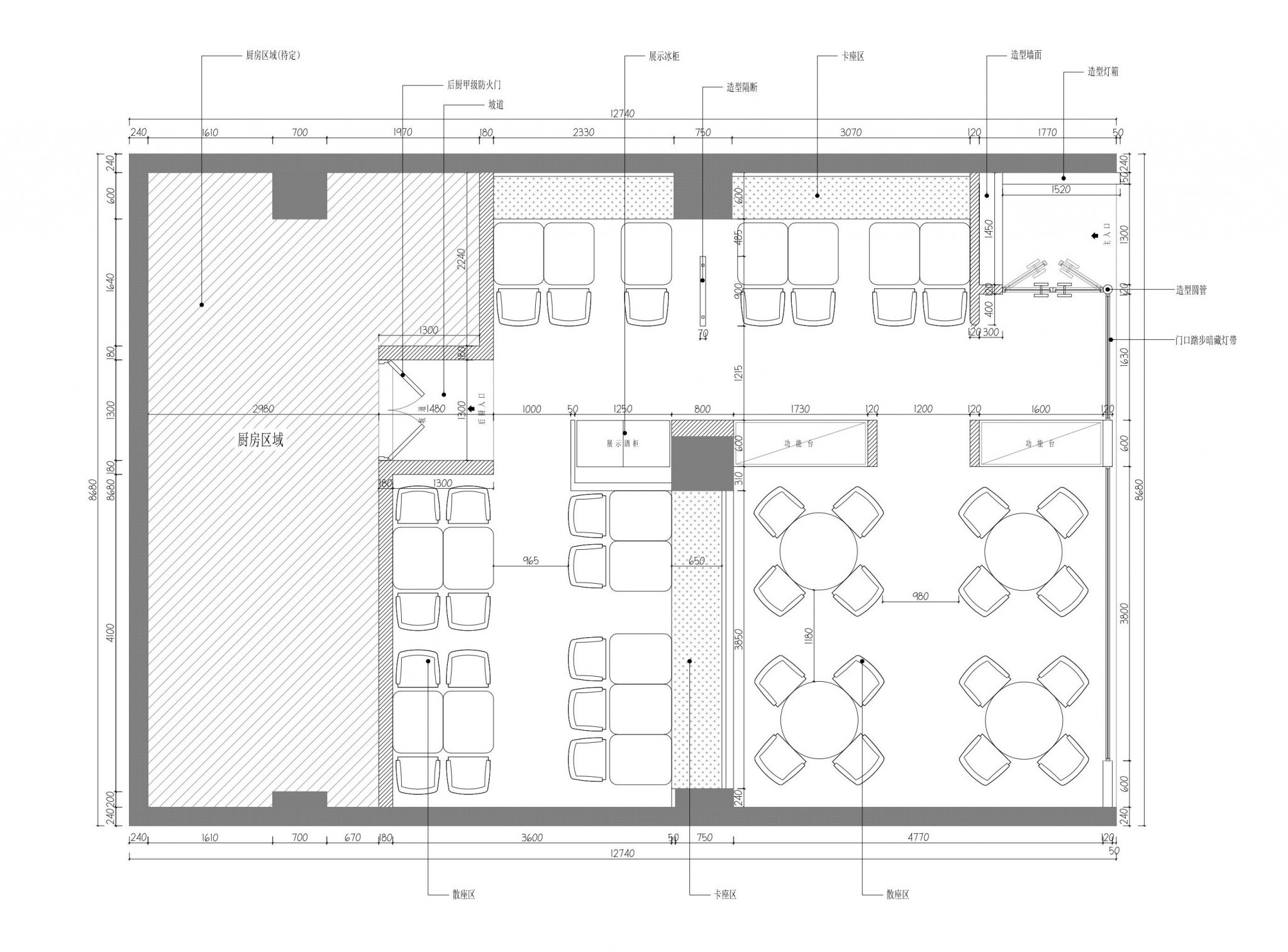
一膳?!ぼE腳牛肉餐廳
餐飲品牌策劃|餐飲品牌設計|餐飲logo設計|vi設計|餐飲空間設計
一膳牛團隊一直致力于餐飲行業,在機緣巧合中發現川菜中特色菜品“蹺腳牛肉”,是四川樂山的傳統名菜,具有百年文化歷史,但除四川外鮮為人知。2020年5月,一膳牛第一家餐廳正式開業,但因團隊缺乏品牌操作能力,與同品類其他品牌相比處于弱勢,因此找到達岸,借助達岸成熟的品牌操作能力與設計落地能力共同為該項目賦能。
達岸基于蹺腳牛肉先天非物質文化遺產基因優勢,幫助客戶搶占“樂山非遺上榜川菜”的定位認知,圍繞“正宗”這一品牌承諾,建立消費者對品牌信任可感知的說服體系;尋找具有價值感知的品牌符號,創意品牌資產,并為餐飲店終端落地提供產品規劃與營銷策劃及設計服務。
設計有魂 | 大道至簡
好設計 承載戰略 驅動業務
-
TEL: 156 5811 9419
TEL: 156 5811 9419
Copyright? Answerland Consultancy








